Description
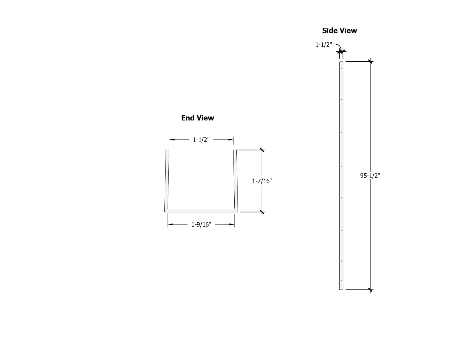
Create a clean, secure mounting system for tongue-and-groove wood installations with our 8-foot steel wall channels, engineered to receive standard 1-1/2″ thick boards. Ideal for interior or exterior applications where strength, alignment, and a professional finish matter.
Each set sells as a pair and includes all required fasteners, so you have everything needed for a straightforward installation right out of the box.
Features & Benefits of our 8′ Steel Wall Channels:
- Designed for 1-1/2" thick boards — precise fit for consistent spacing and alignment
- 8-foot length — perfect for Partitions, Stall Fronts or back walls
- Heavy-duty steel construction — built for long-term durability and structural support
- Clean, concealed mounting — channels hold boards securely while maintaining a
polished look - Complete hardware included — no extra trips for fasteners
What’s Included In The 8′ Steel Wall Channel Kit:
- (2) 8' steel wall channels
- All necessary mounting fasteners
